Vily nad Slatinou
Vily nad Slatinou - map
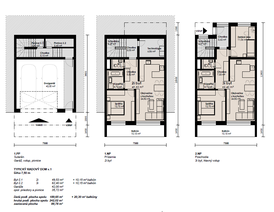
Oficiálna stránka bytu
byt
22
budova
Vila Moderna
mesto / obec
typ
2-izbový byt
interiér
48.NP
-
voľný