Vily nad Slatinou
Vily nad Slatinou - map
Oficiálna stránka bytu
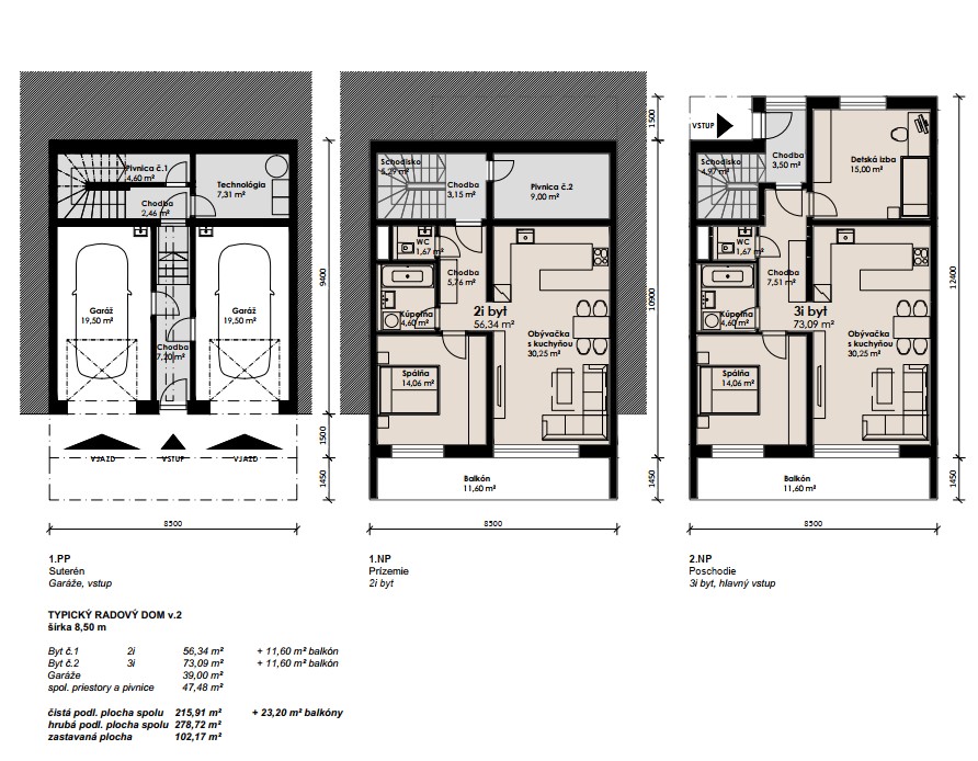
byt
36
budova
Vila Moderna
mesto / obec
typ
2-izbový byt
interiér
55.NP
-
voľný