Vily nad Slatinou
Vily nad Slatinou - map
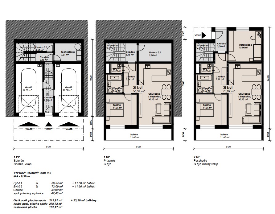
Oficiálna stránka bytu
byt
37
budova
Vila Moderna
mesto / obec
typ
3-izbový byt
interiér
72.NP
-
voľný