Vily nad Slatinou
Vily nad Slatinou - map
Oficiálna stránka domu
dom
12
budova
Vila Panorama
mesto / obec
typ
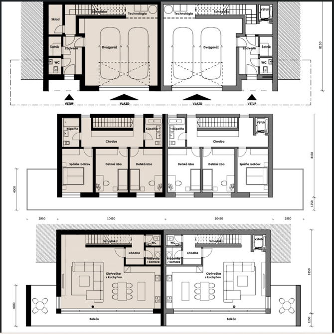
4-izbový dom
interiér
219.NP
exteriér
22.11 m²
-
voľný