Bývanie Ružičky
Bývanie Ružičky - map
Oficiálna stránka bytu
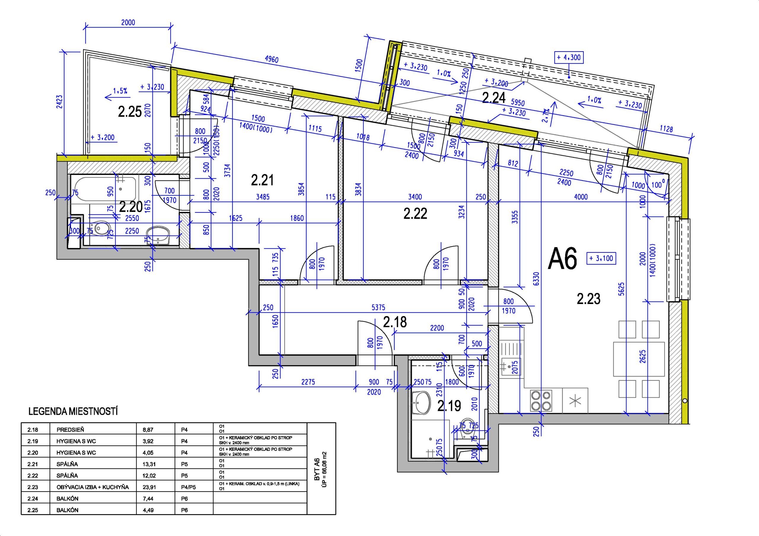
byt
A6
budova
A
mesto / obec
typ
3-izbový byt
poschodie
2.NP
interiér
66.NP
terasa
11.93 m²
232 050 €
voľný
Vypočítať návratnosť