flatscraper - logo
Hanzlíkovská
Hanzlíkovská - map
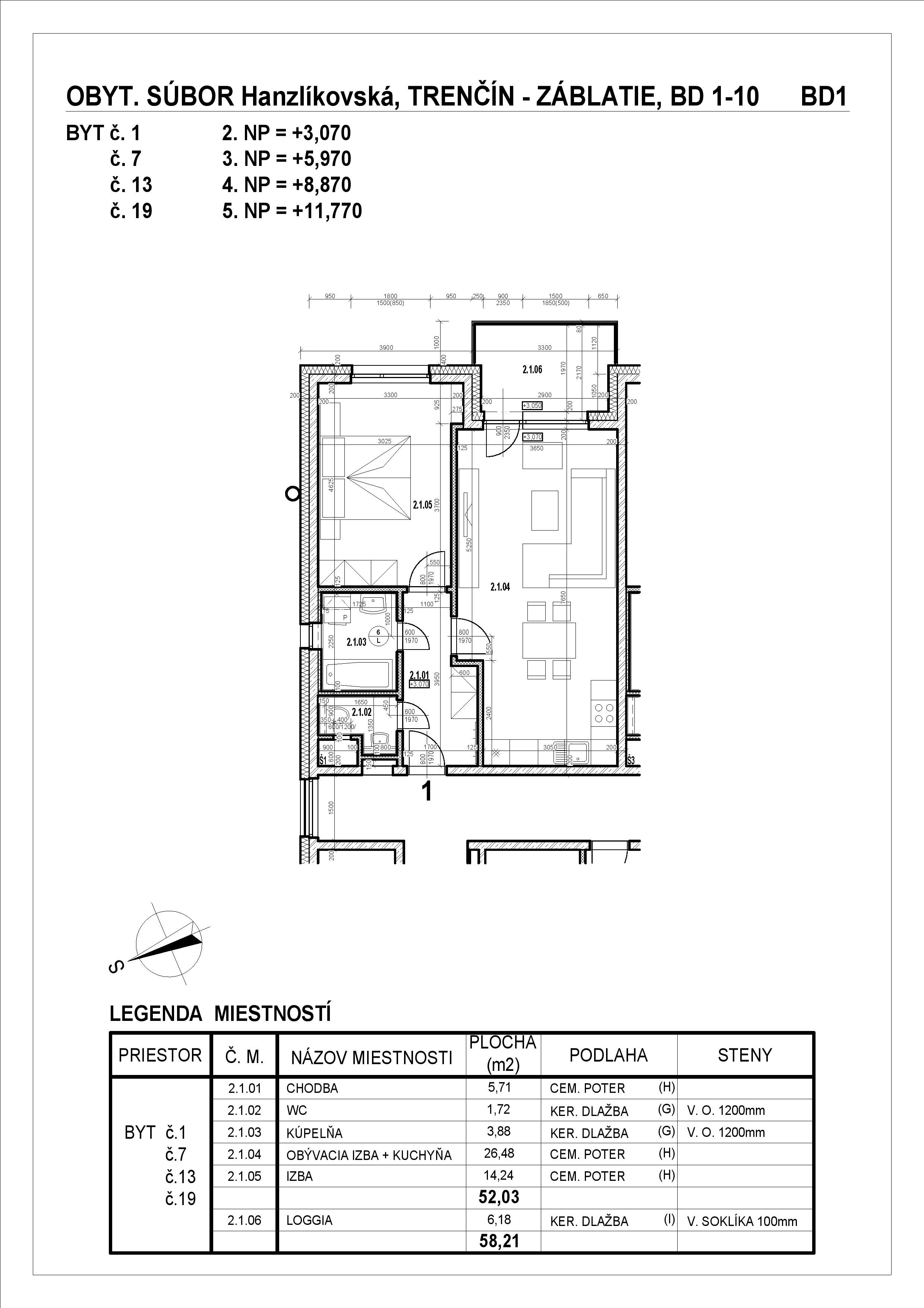
byt:
1
Budova:
BD2
Projekt:
Mesto / Obec:
Typ:
2-izbový byt
Poschodie:
2.NP
Rozloha:
52.03 m²
Balkón:
6.18 m²
Cena:
-
Dostupnosť:
predaný
Moja Nehnuteľnosť
Profesionálna kalkulačka pre investície do nehnuteľností
Kontakt:
Hanzlíkovská - 1 - Pôdorys
zdroj: https://monolit.sk/hanzlikovska2/byt-1