flatscraper - logo
Trenčín Veľkomoravská
Trenčín Veľkomoravská - map
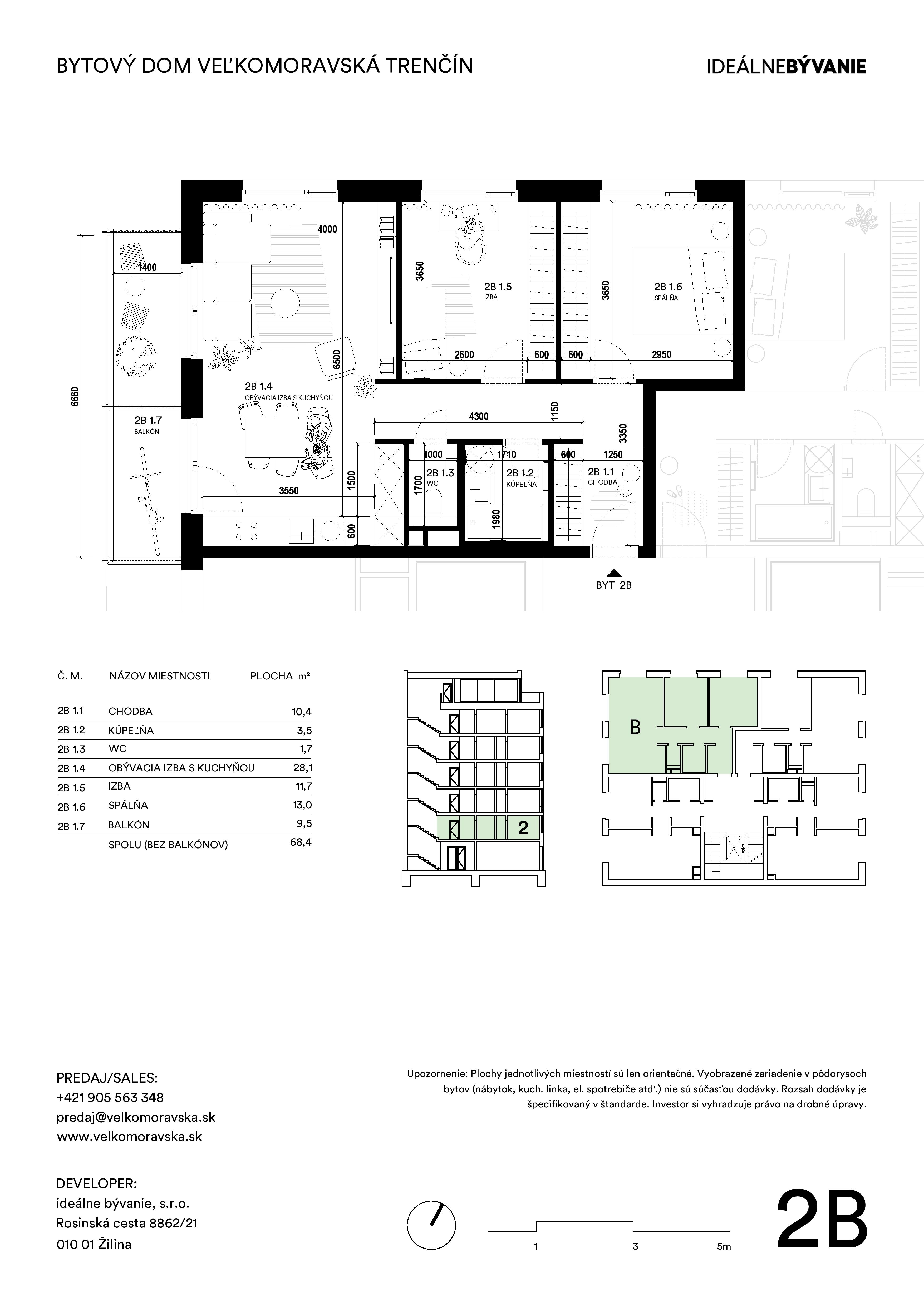
byt:
2B
Mesto / Obec:
Typ:
3-izbový byt
Poschodie:
2.NP
Rozloha:
79.4 m²
Cena:
222 320 €
Dostupnosť:
voľný
Moja Nehnuteľnosť
Profesionálna kalkulačka pre investície do nehnuteľností
Trenčín Veľkomoravská - 2B - Pôdorys
zdroj: https://idealnebyvanie.sk/byty-na-predaj/byt-2b