flatscraper - logo
Za Južnou
Za Južnou - map
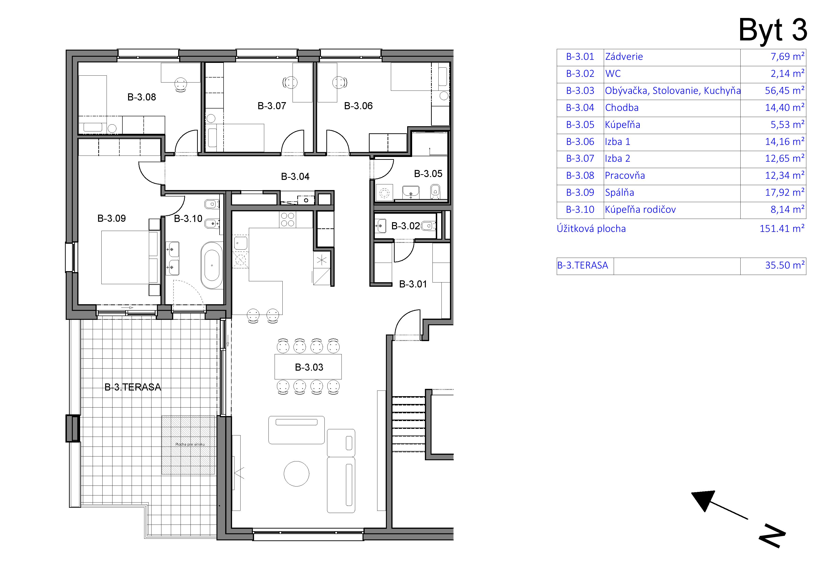
byt:
3
Projekt:
Mesto / Obec:
Typ:
5-izbový byt
Poschodie:
2.NP
Rozloha:
151.41 m²
Terasa:
35.5 m²
Cena:
467 000 €
Dostupnosť:
voľný
Moja Nehnuteľnosť
Profesionálna kalkulačka pre investície do nehnuteľností
Kontakt:
Za Južnou - 3 - Pôdorys
zdroj: https://zajuznou.sk/byty/byt-3