flatscraper - logo
Prúdy Trnava
Prúdy Trnava - map
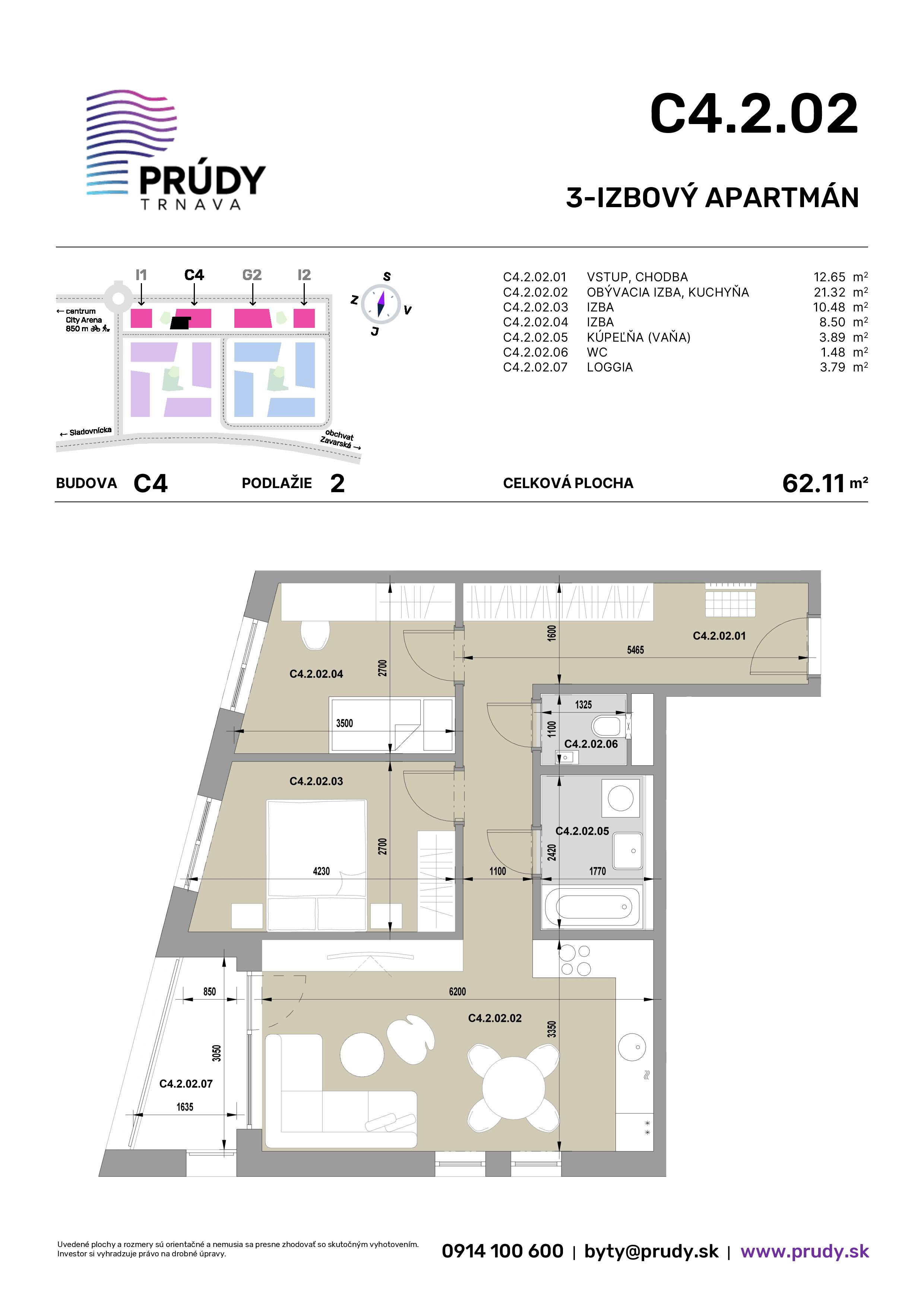
byt:
Budova:
C4
Projekt:
Mesto / Obec:
Typ:
3-izbový byt
Poschodie:
2.NP
Rozloha:
58.3 m²
Exteriér:
3.8 m²
Cena:
-
Dostupnosť:
voľný
Moja Nehnuteľnosť
Profesionálna kalkulačka pre investície do nehnuteľností
Kontakt:
Prúdy Trnava - C4.2.02 - Pôdorys
zdroj: https://www.prudy.sk/byty/C4/2/02