flatscraper - logo
Bývanie pri mlyne
Bývanie pri mlyne - map
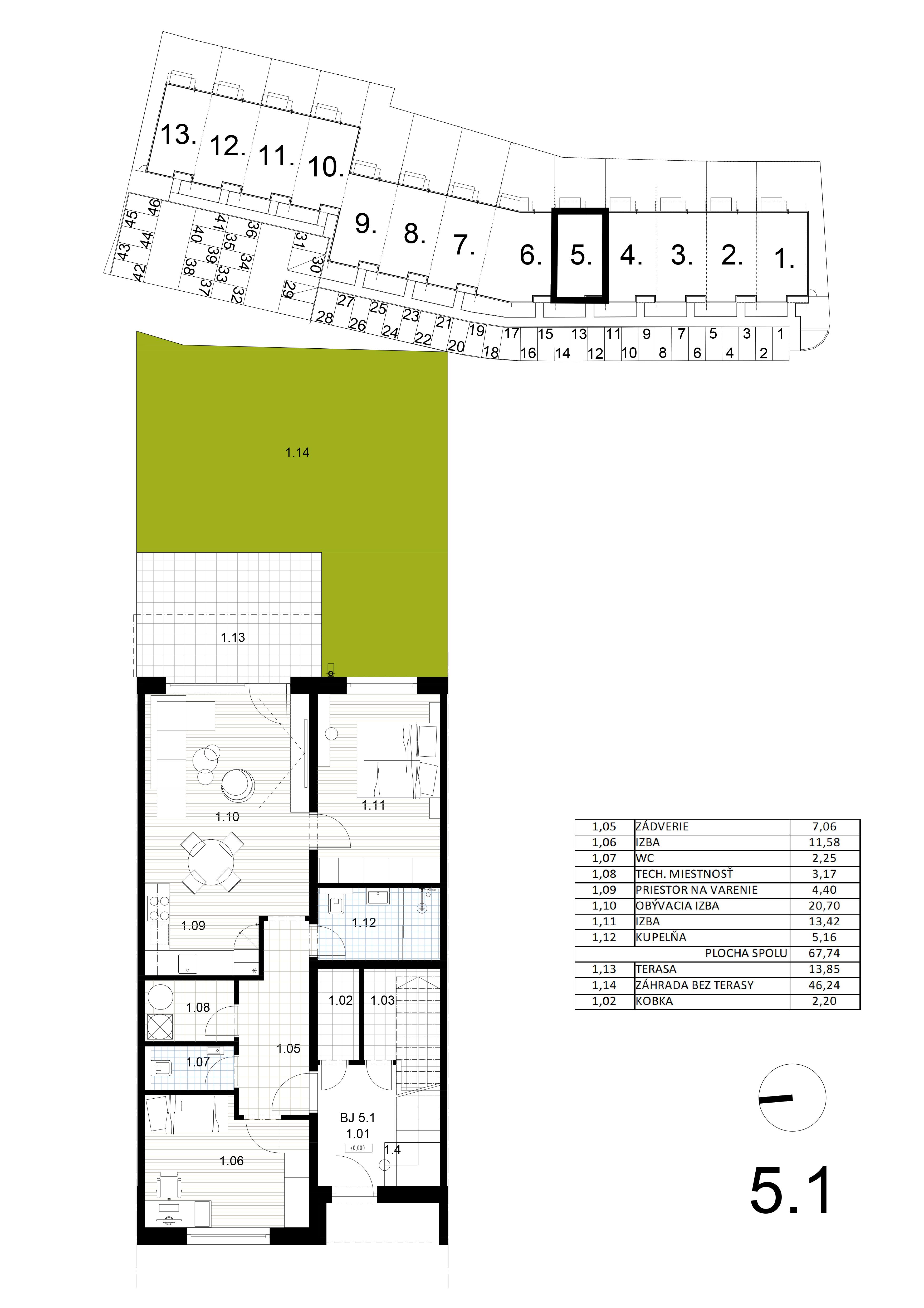
byt:
5.1
Mesto / Obec:
Typ:
3-izbový byt
Rozloha:
70 m²
Cena:
164 500 €
Dostupnosť:
voľný
Moja Nehnuteľnosť
Profesionálna kalkulačka pre investície do nehnuteľností
Bývanie pri mlyne - 5.1 - Pôdorys
zdroj: https://byvanieprimlyne.sk/ponuka/byt-5-1/