flatscraper - logo
HI Residence
HI Residence - map
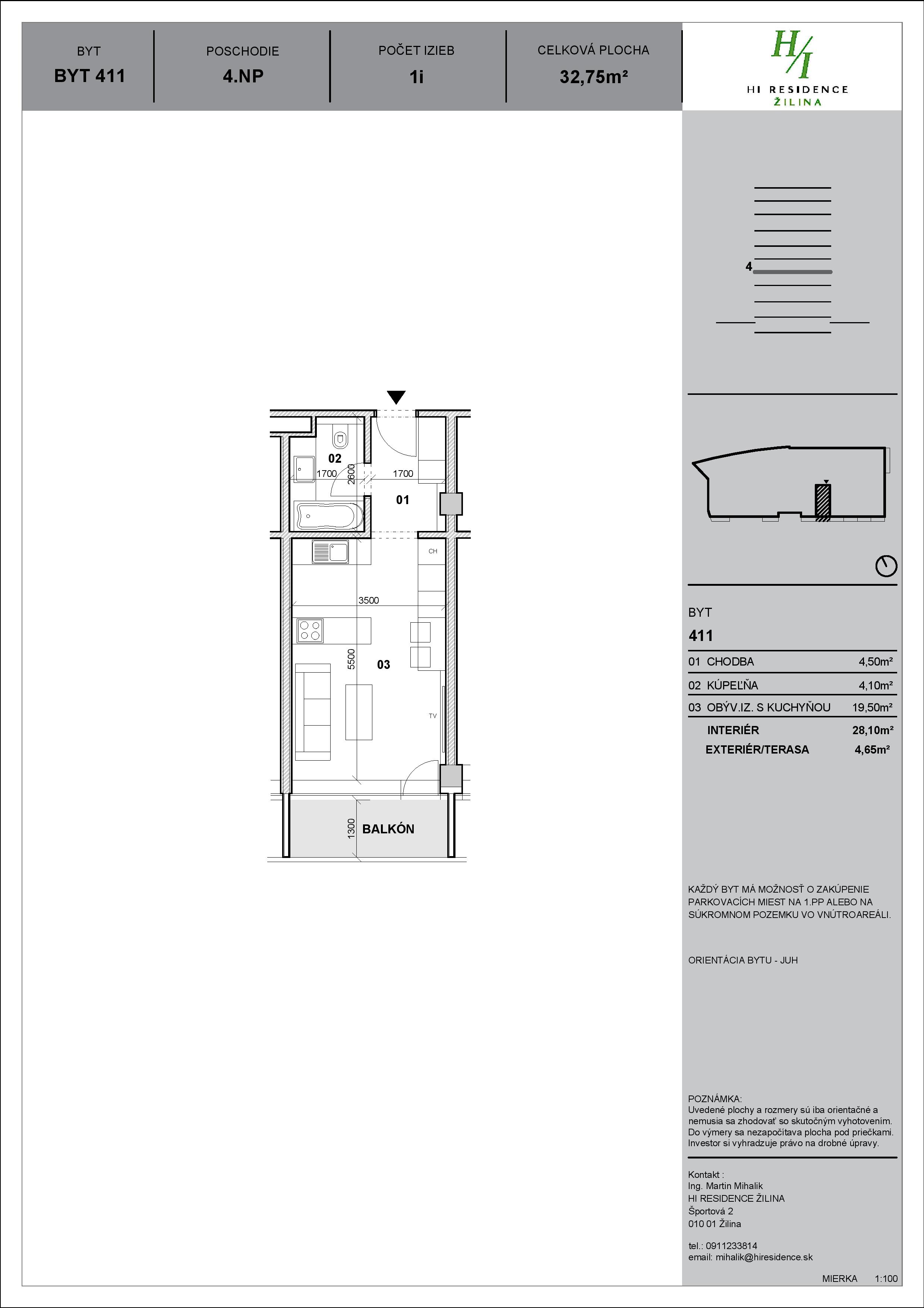
byt:
411
Projekt:
Mesto / Obec:
Typ:
1-izbový byt
Poschodie:
4.NP
Rozloha:
28.1 m²
Terasa:
4.5 m²
Cena:
137 000 €
Dostupnosť:
voľný
Moja Nehnuteľnosť
Profesionálna kalkulačka pre investície do nehnuteľností
HI Residence - 411 - Pôdorys
zdroj: https://hiresidence.sk/property/411/