Na Klásku
Na Klásku - map
Oficiálna stránka bytu
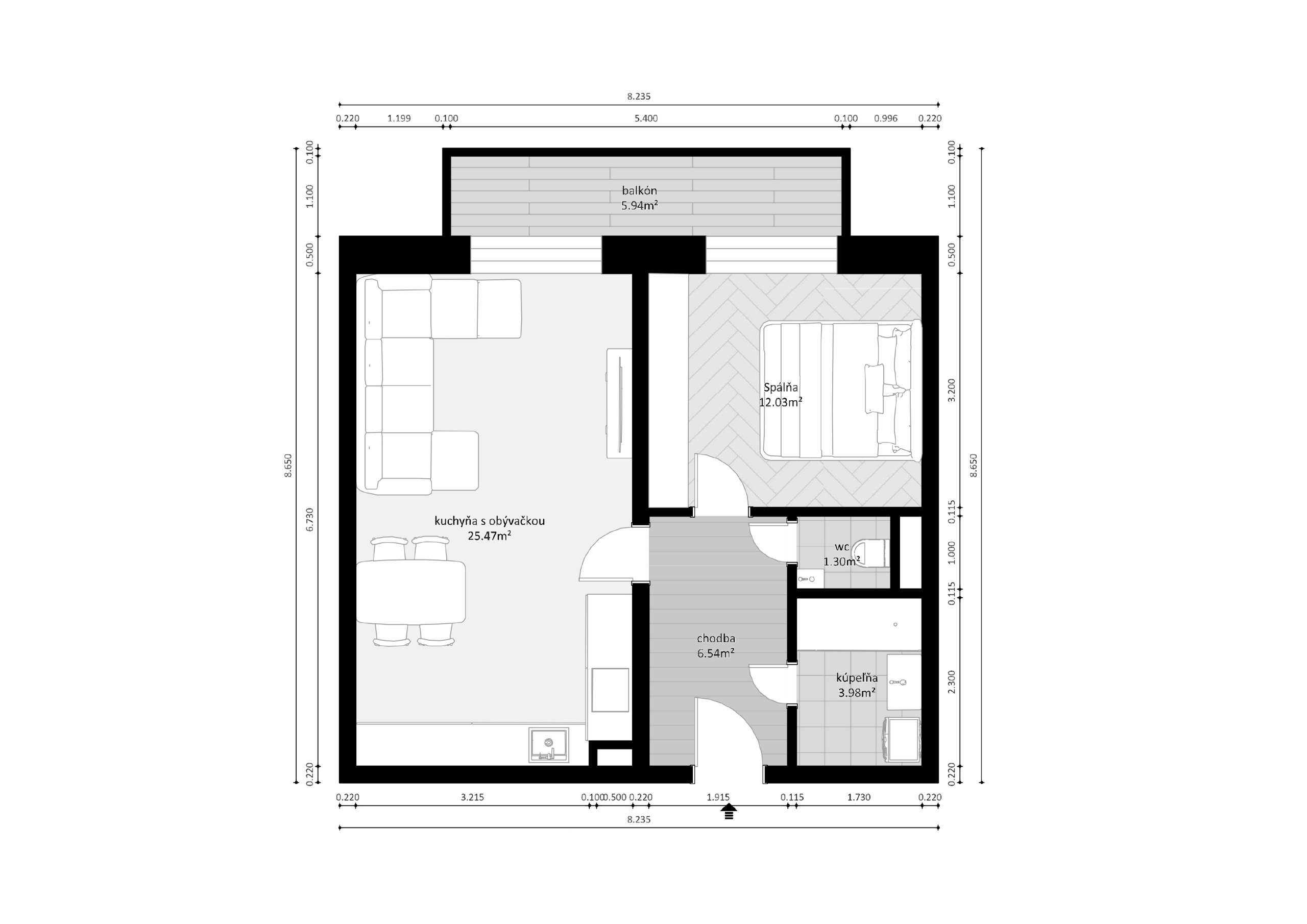
byt
F02
budova
-
projekt
mesto / obec
typ
2-izbový byt
poschodie
2.NP
interiér
49.NP
balkón
6 m²
114 944 €
voľný
Vypočítať návratnosť