Nový Začiatok
Nový Začiatok - map
Oficiálna stránka bytu
byt
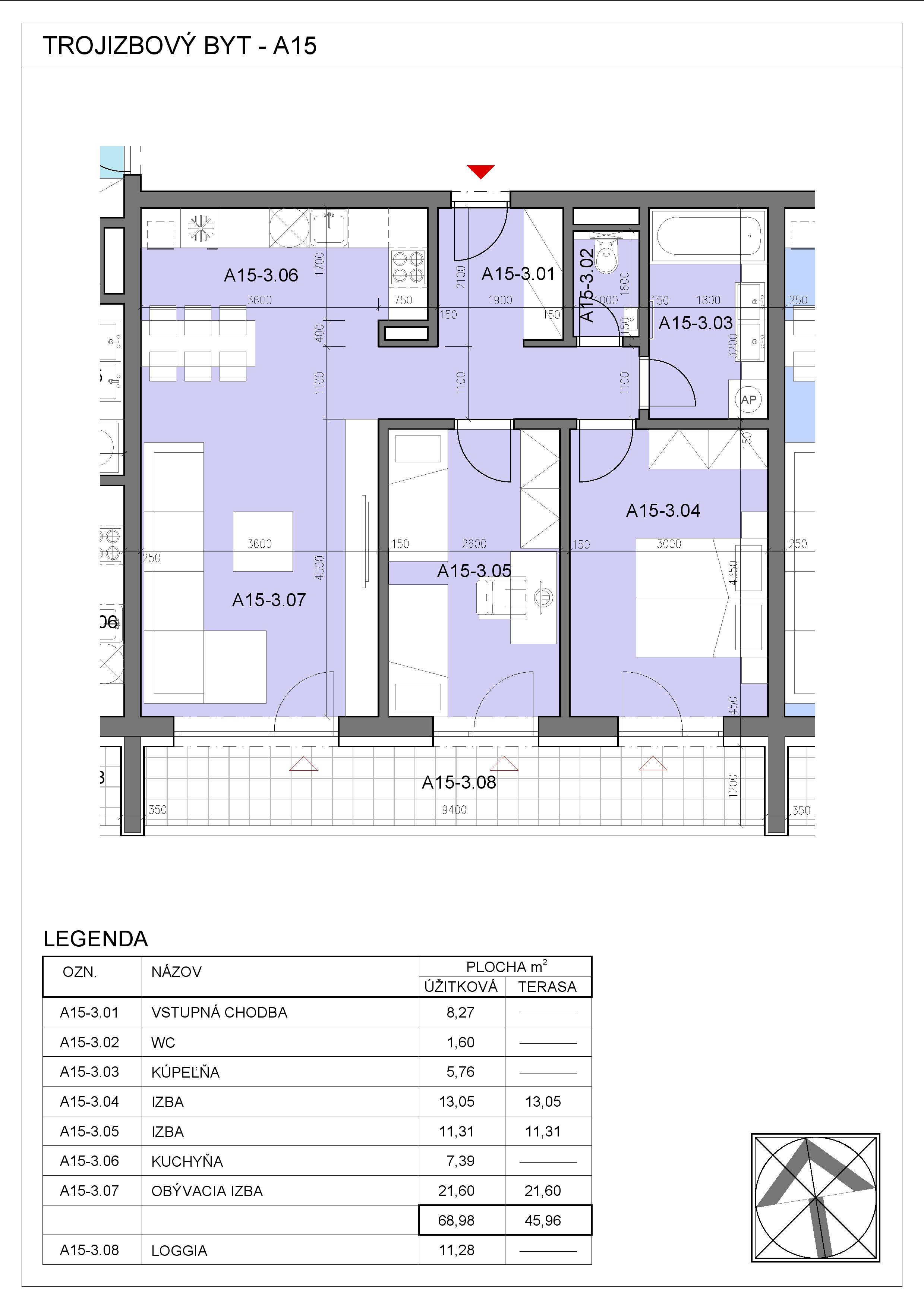
A15
budova
-
projekt
mesto / obec
typ
3-izbový byt
poschodie
3.NP
interiér
69.NP
166 990 €
voľný
Vypočítať návratnosť