Nový Začiatok
Nový Začiatok - map
Oficiálna stránka bytu
byt
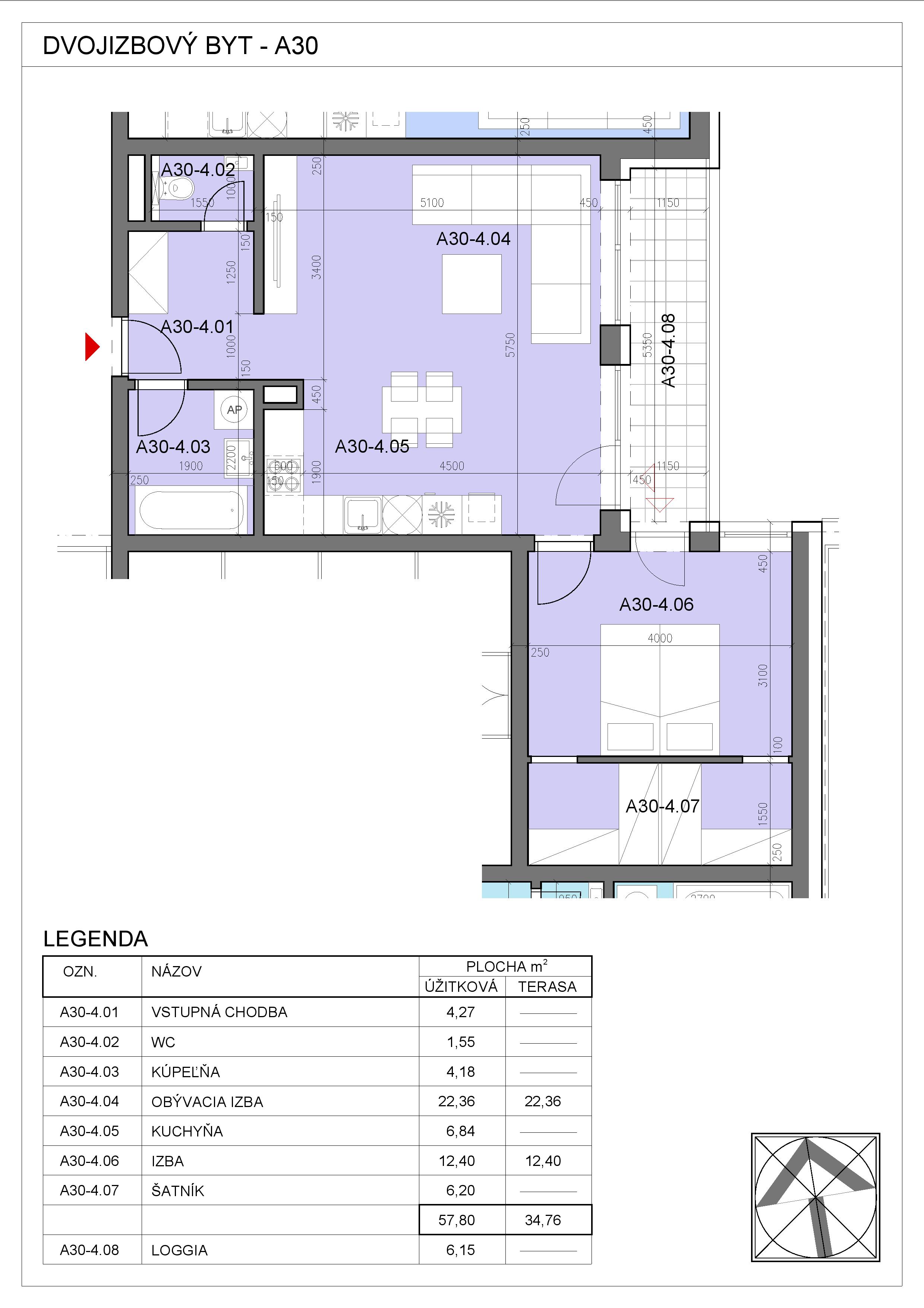
A30
budova
-
projekt
mesto / obec
typ
2-izbový byt
poschodie
4.NP
interiér
57.NP
143 990 €
voľný
Vypočítať návratnosť