Ďateliniská
Ďateliniská - map
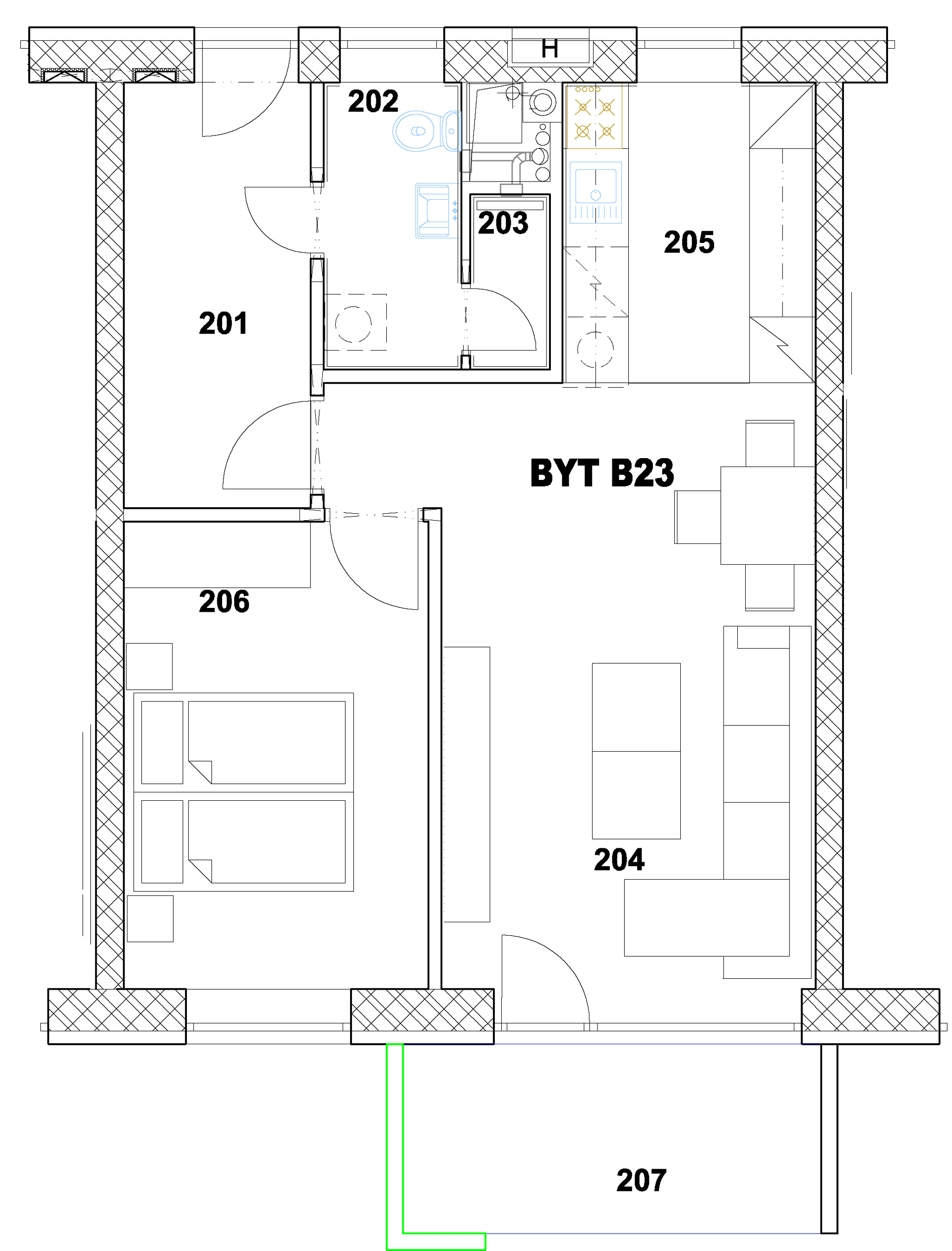
Oficiálna stránka bytu
byt
B23
budova
B
projekt
mesto / obec
typ
2-izbový byt
poschodie
1.NP
plocha
56.NP
117 000 €
voľný
Vypočítať návratnosť