Kráľovianky Domy
Kráľovianky Domy - map
Oficiálna stránka domu
dom
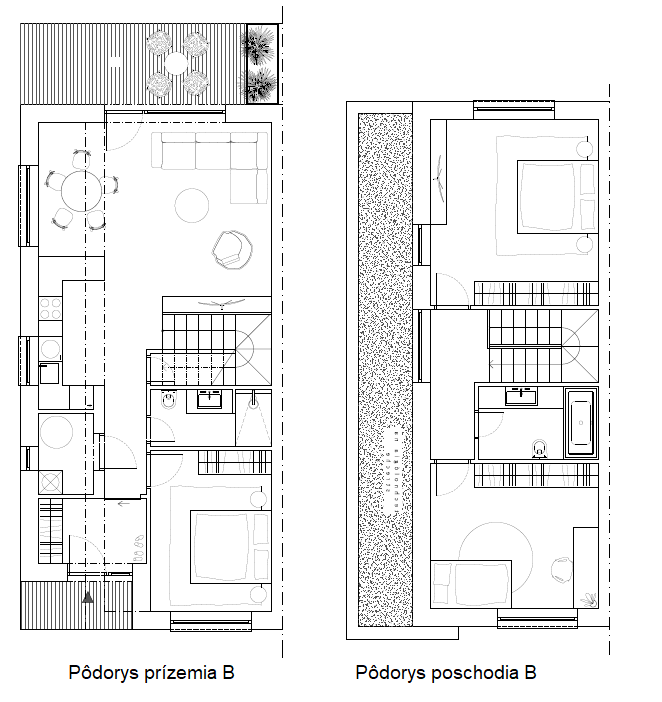
C.1 CAST B
budova
-
mesto / obec
typ
4-izbový dom
interiér
81.NP
-
voľný