flatscraper - logo
Kráľovianky Domy
Kráľovianky Domy - map
Mesto / Obec:
Typ:
4-izbový dom
Rozloha:
81.17 m²
Pozemok:
279 m²
Cena:
-
Dostupnosť:
voľný
Moja Nehnuteľnosť
Profesionálna kalkulačka pre investície do nehnuteľností
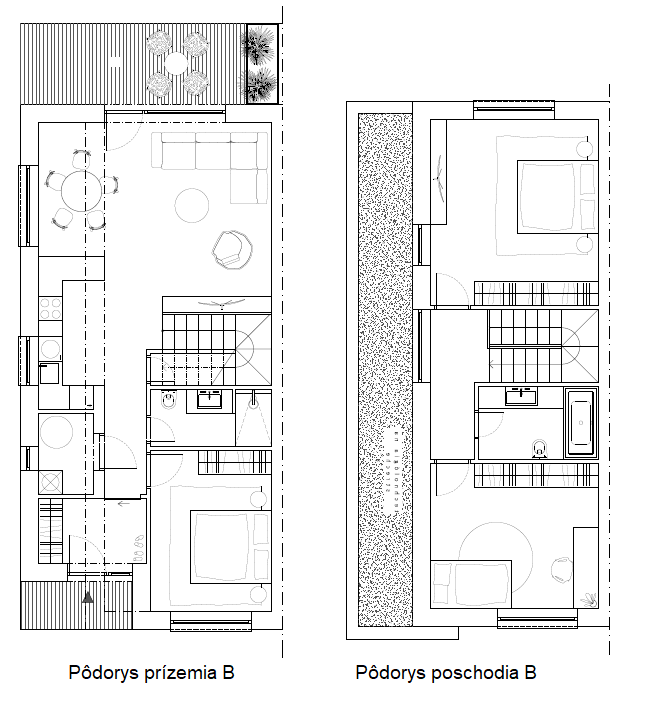
Kráľovianky Domy - C.7 CAST B - Pôdorys
zdroj: https://kraloviankydomy.sk/dvojdom-c-7-b/