Scenéria
Scenéria - map
Oficiálna stránka bytu
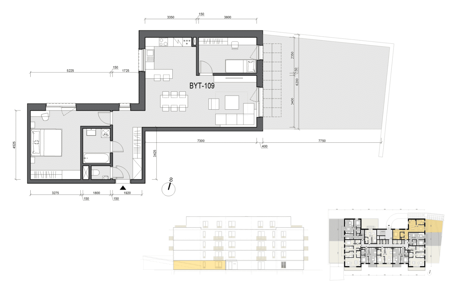
byt
109
budova
-
projekt
mesto / obec
typ
3-izbový byt
poschodie
1.NP
plocha
118.NP
predzáhradka
26.69 m²
terasa
14.2 m²
exteriér
40.89 m²
287 900 €
voľný
Vypočítať návratnosť