Scenéria
Scenéria - map
Oficiálna stránka bytu
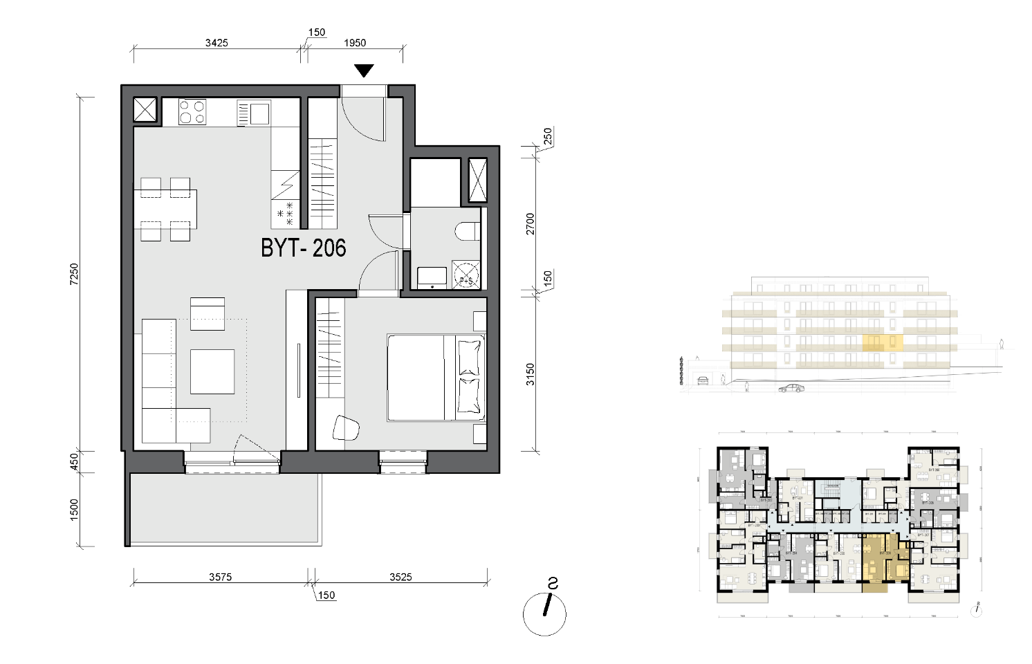
byt
206
budova
-
projekt
mesto / obec
typ
2-izbový byt
poschodie
2.NP
plocha
54.NP
balkón
4.82 m²
exteriér
4.82 m²
191 805 €
voľný
Vypočítať návratnosť