flatscraper - logo
Scenéria
Scenéria - map
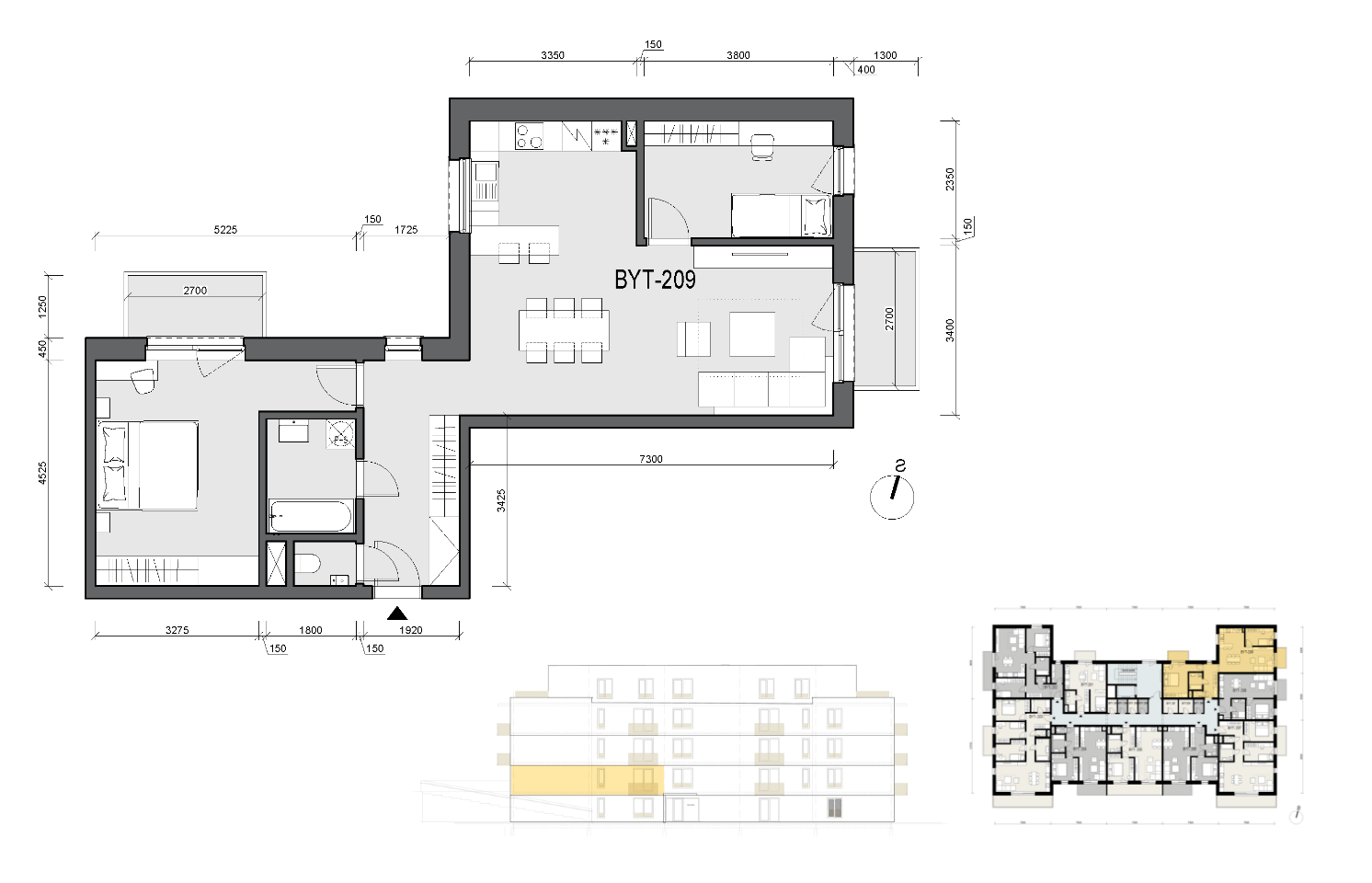
byt:
209
Projekt:
Mesto / Obec:
Typ:
3-izbový byt
Poschodie:
2.NP
Rozloha:
83.31 m²
Exteriér:
6.04 m²
Balkón:
6.04 m²
Cena:
259 900 €
Dostupnosť:
voľný
Moja Nehnuteľnosť
Profesionálna kalkulačka pre investície do nehnuteľností
Scenéria - 209 - Pôdorys
zdroj: https://sceneriazilina.sk/byt/209/