Scenéria
Scenéria - map
Oficiálna stránka bytu
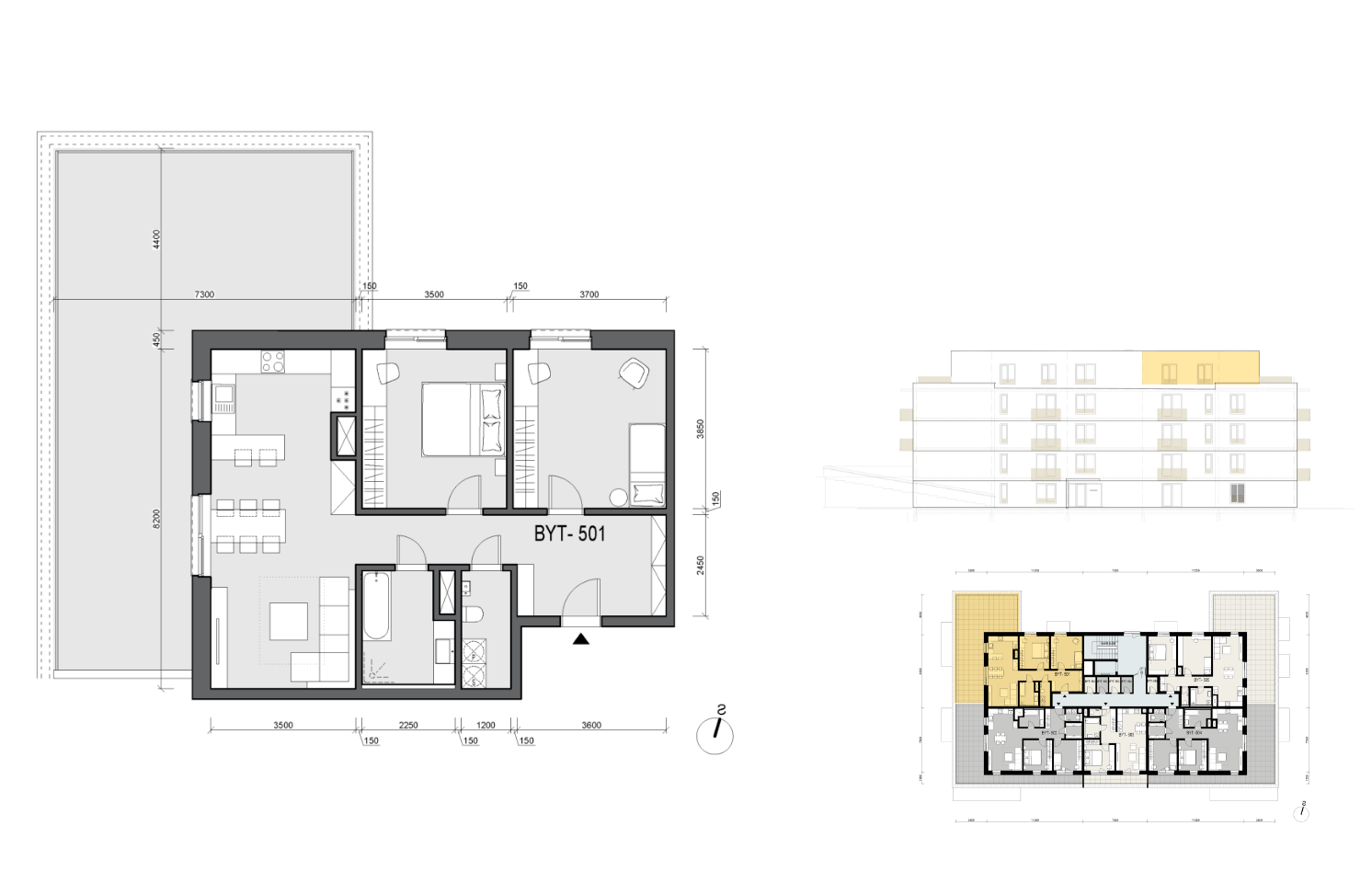
byt
501
budova
-
projekt
mesto / obec
typ
3-izbový byt
poschodie
5.NP
plocha
141.NP
terasa
60.23 m²
exteriér
60.23 m²
338 900 €
voľný
Vypočítať návratnosť