flatscraper - logo
Scenéria
Scenéria - map
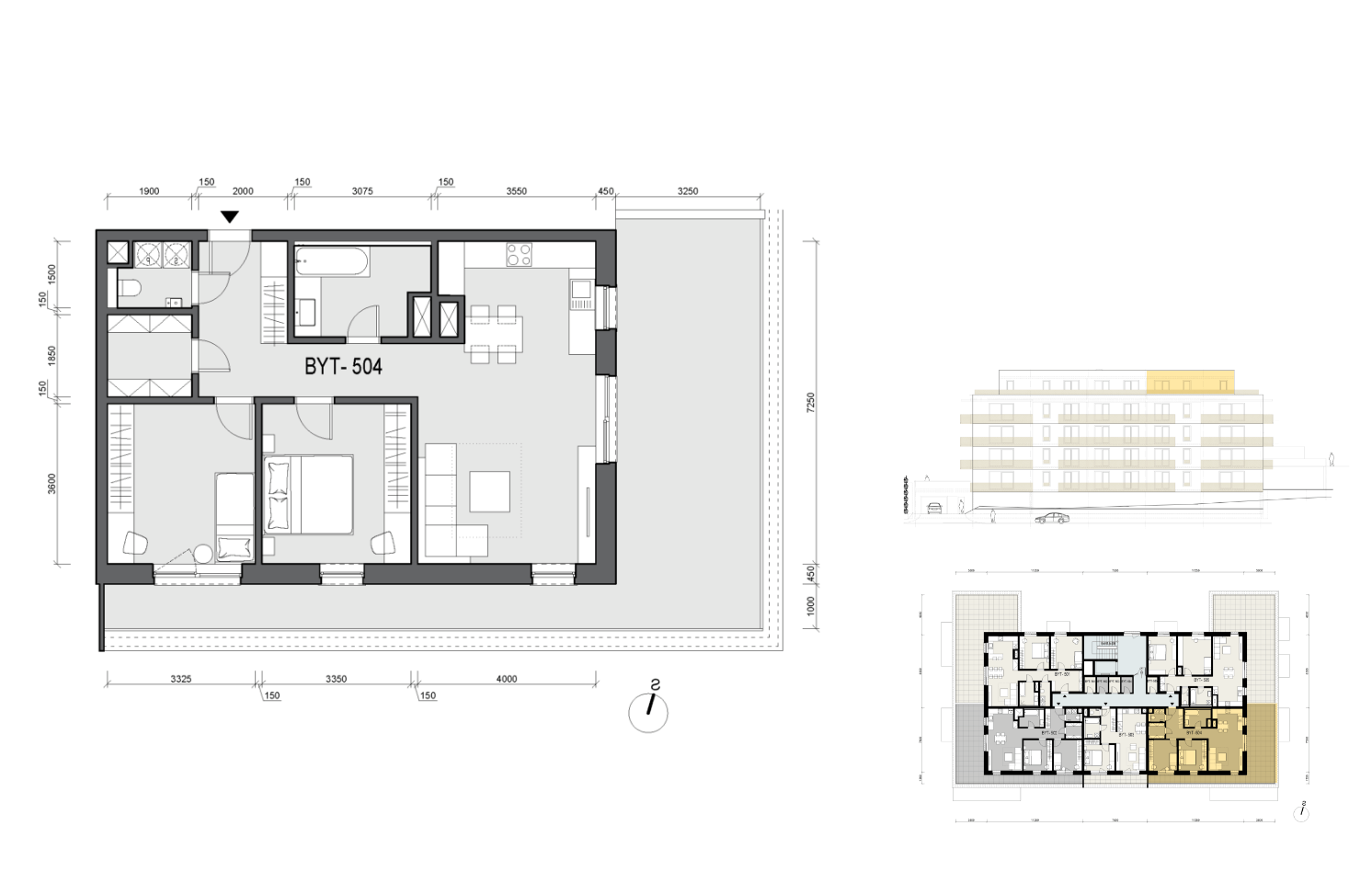
byt:
504
Projekt:
Mesto / Obec:
Typ:
3-izbový byt
Poschodie:
5.NP
Rozloha:
117.53 m²
Exteriér:
41.19 m²
Terasa:
41.19 m²
Cena:
315 900 €
Dostupnosť:
voľný
Moja Nehnuteľnosť
Profesionálna kalkulačka pre investície do nehnuteľností
Scenéria - 504 - Pôdorys
zdroj: https://sceneriazilina.sk/byt/504/